Menü
eService
Direkt zu
Suche

Aus drei wird eins

Neuer einheitlicher Campus für die Werner-von-Siemens-Schule

Die Werner-von-Siemens-Schule in der Karlsruher Nordweststadt ist eine Grund-, Werkreal- und Ganztagsschule. Von Montag bis Donnerstag sind die Kinder bis zum Nachmittag vor Ort, am Freitag ist bereits um die Mittagszeit Schluss. Nach dem gemeinsamen Mittagessen finden zahlreiche Aktivitäten statt, später dann die sogenannte Lernzeit, in denen die Kinder mit Unterstützung der Lehrerinnen und Lehrer ihre Aufgaben erledigen können.

Ein wichtiger Lernort mit starkem Konzept

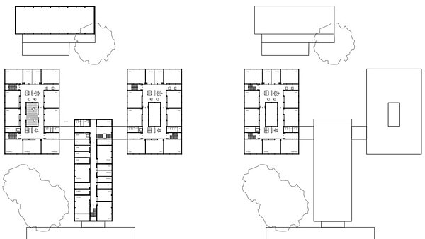
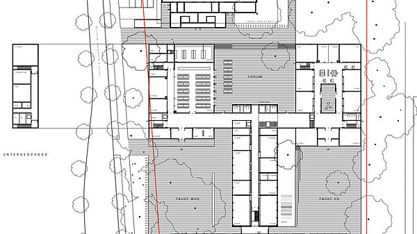
Die Schule, die sich vor allem auch dadurch auszeichnet, eine inklusive Lerneinrichtung zu sein, ist derzeit an drei verschiedenen Orten beheimatet. Das erschwert den Schulalltag ungemein. Um hier Abhilfe zu schaffen und den Schülerinnen und Schülern unnötige Umstände und Wege zu ersparen, soll der Standort vereinheitlicht und konzentriert werden. Künftig soll es einen gemeinsamen Campus in der Kurt-Schumacher-Straße 1 geben.

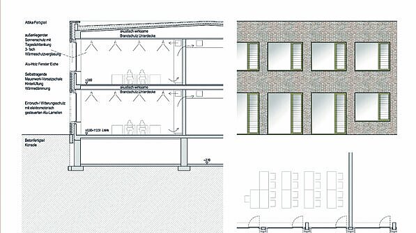
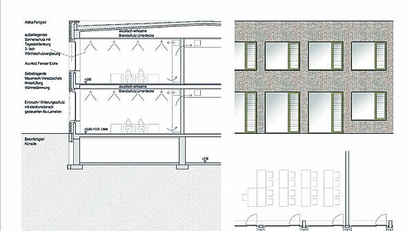
Barrierefrei und modern

Dazu ist es nötig, am neuen Standort die Gebäude zu modernisieren und zu erweitern. Zudem sollen sämtliche Einrichtungen barrierefrei gestaltet werden. Ziel ist es, sowohl einen funktionalen Gebäudekomplex als auch ein optisch einheitliches, modernes Gesamtgefüge zu schaffen. Grund- und Werkrealschule werden aufeinander abgestimmt konzipiert. Die geplanten Neubauten sollen sich stilistisch und optisch mit den Bestandsimmobilien verbinden. Schlussendlich wird der neue Schulkomplex 696 Schülerinnen und Schüler fassen, die im überzeugenden Ganztagskonzept ihren Schulalltag in bester Atmosphäre erleben können.

Preisträger

1. Rang

Thoma.Lay.Buchler.Archi­tek­ten BDA, Stuttgart

Innenraum

2. Rang

Arge schürmann+schürmann architekten, Stuttgart

schürmann+witry architekten, Zürich

3. Rang

Rossmann & Partner, Karlsruhe

Anerkennung

Broghammer, Jana, Wohlleber, Zimmern ob Rottweil

Anerkennung

OHO Archi­tek­ten, Stuttgart

Wettbewerbsform nicht-offener Planungswettbewerb nach RPW 
Anzahl teilnehmende Büros 17
Preisgericht Vorsitz: Prof. Armin Günster, Architekt, Stuttgart
Bürgermeister Daniel Fluhrer, Dezernat 6, Stadt Karlsruhe
Konrad Assem, Architekt Karlsruhe
Petra Scheuerer, Schul- und Sportamt, Karlsruhe
Oliver Braun, Architekt, Stuttgart
Prof. Bernhard Lenz, Architekt, Karlsruhe
Prof. Anne Sick, Leiterin Amt für Hochbau und Gebäudewirtschaft, Stadt Karlsruhe
Jurysitzung 13. November 2020
1. Preis Thoma.Lay.Buchler.Architekten,  Stuttgart
2. Preis Schuermann + schuermann architekten,  Stuttgart
3. Preis Rossmann & Partner, Karlsruhe
Anerkennung OHO Architekten,  Stuttgart
Anerkennung Broghammer, Jana, Wohlleber, Zimmern ob Rottweil
Preisgelder ingesamt 100.000 Euro 

Wettbewerbs-
broschüre

Wettbewerbsbroschüre 37 MB (PDF)

 

-

Kopieren Kopieren Schreiben Schreiben