Menü
eService
Direkt zu
Suche

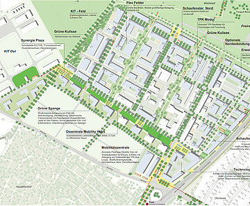
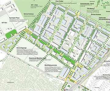
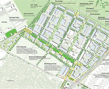
Städtebauliche Projekte

Karlsruhe ist eine Stadt mit hoher Attrak­ti­vi­tät, davon zeugen die Bevöl­ke­rungs­zahlen, die seit vielen Jahren stetig ansteigen. Mit verschiedenen Konzepten und Visionen entwickelt Karlsruhe die räumliche Zukunft der Stadt. Viele Maßnahmen wurden bereits in Angriff genommen, um die Aufenthalts- und Lebensqualität weiter zu steigern.

Baugruppen

Vor dem Hin­ter­grund des gesell­schaft­li­chen Wandels durch Globa­li­sie­rung und demogra­fi­sche Entwick­lung entstehen zunehmend neue Wohn­for­men, in denen Menschen aller Genera­tio­nen aktiv ihr Zu­sam­men­le­ben gestalten.

-

Kopieren Kopieren Schreiben Schreiben