Menü
eService
Direkt zu
Suche

Sanierung bei der Stadt Karlsruhe

Die Sanierung zählt zu den klassi­schen Aufgaben der Stadt­pla­nung. Karlsruhe blickt dabei auf jahrzehn­te­lange Erfah­run­gen mit sich ständig ändernden Rahmen­be­din­gun­gen zurück­. Mit der Sanierung des „Dörfle“ wurde in Karlsruhe die erste Flächensa­nie­rung in Deutschland nach dem Städte­bau­för­de­rungs­ge­setz durch­ge­führt.

Rund ums Thema Stadtplanung in Karlsruhe

Freiraumentwicklung

Bäume und jegliche Stadtvegetation haben einen hohen Einfluss auf das Wohlbefinden unserer Bürgerinnen und Bürger. Auch für Tiere und Pflanzen wird der städtische Lebensraum immer wichtiger. Es ist die Aufgabe der Stadtgemeinschaft eine lebenswerte Umwelt für Mensch und Tier zu gestalten.

Spiel- und Bewegungsflächen

In Karlsruhe gibt es über 320 öffentliche Kinderspielplätze, darunter Bolz- und Ballspielflächen, Skateanlagen sowie zahlreiche Volleyball- und Basketballfelder. Zudem stehen Spielflächen in Kleingartenanlagen und Schulhöfen zur Verfügung.

Sportentwicklungsplanung in Karlsruhe

Im Rahmen eines kooperativen Sportentwicklungsprozesses wurden Maßnahmen für die zukünftige Sportentwicklung in Karlsruhe erarbeitet. Die Ergebnisse sind im Bericht "Sport und Bewegung in Karlsruhe- Abschlussbericht zur kommunalen Sportentwicklungsplanung" (2015) dokumentiert.

Stadtplanung

Das Spektrum der Stadtplanung reicht von der Festlegung der bau­li­chen Nutzungen und Standorten bis zur Gestaltung des öf­fent­li­chen Raumes, von Mobili­täts­kon­zep­ten bis zur konkre­ten ­Ver­kehrs­pla­nung.

Städtebauliche Projekte

Karlsruhe ist eine Stadt mit hoher Attrak­ti­vi­tät, davon zeugen die Bevöl­ke­rungs­zahlen, die seit vielen Jahren stetig ansteigen. Mit verschiedenen Konzepten und Visionen entwickelt Karlsruhe die räumliche Zukunft der Stadt.

Stadt Karlsruhe | Milieuschutz

Der Karlsruher Gemein­de­rat hat am 23. März 2021 die Aufstel­lung ei­ner Sozialen Erhal­tungs­sat­zung ("Milieu­schutz­sat­zung") ­be­schlos­sen.

Stadtteilentwicklung

Im Rahmen der zukunftsfähigen Weiterentwicklung der Karlsruher Stadtteile werden Integrierte Stadtteilentwicklungskonzepte (STEK) im Rahmen von Stadtteilentwicklungsprozessen erstellt.

Flächenmanagement

Dem Flächenmanagement der Stadt Karlsruhe sind die Aufgaben- und Entwicklungsbereiche Umlegungsverfahren, Innentwicklungskonzept, Lage- und Bebauungspläne sowie das Baulandkataster zugeordnet.

Sanierungsgebiete

Die Sanierung zählt zu den klassischen Aufgaben der Stadtplanung. Ein zentraler Punkt des Verfahrens ist die Einbeziehung der Menschen vor Ort. Erfahren Sie mehr über die Gebiete, die als Sanierungsgebiete ausgewiesen sind oder waren.

Öffentlicher Raum und Mobilität Innenstadt

Ziel des IQ-Leitpro­jekts Öffent­li­cher Raum und Mobilität Innen­stadt­ ist die Entwicklung eines Konzeptes für die Ausge­stal­tung der öf­fent­li­chen Räume und der Mobilität in der City.

Steuerungskonzept Vergnügungsstätten

Vergnü­gungs­stät­ten sollen und können nicht völlig aus dem Stadt­ge­biet Karlsruhe verbannt werden. Ziel des Steuerungskonzepts ist es, ein gesamtstädtisches Leitbild für die Steuerung von Vergnügungsstätten zu erarbeiten.

Konzept Höhenentwicklung Karlsruhe

Das Höhen­ent­wick­lungs­kon­zept behan­del­t insbe­son­dere den Umgang mit Gebäuden, deren Höhen die Re­gel­bau­weise deutlich überschrei­ten. Das Konzept hat dabei folgenden Anspruch: jedes hohe Gebäu­de muss einen Mehrwert für Karlsruhe erzeugen!

Räumliches Leitbild

Warum braucht es neben zahlrei­chen Einzel­pla­nun­gen und dem Integrier­ten Stadt­ent­wick­lungs­kon­zept 2020 ein Räum­li­ches Leitbild? Wie entsteht es? Und was ist überhaupt ein räumliches Leitbild? Was geschah bisher und wie geht es weiter?

Baugruppen

Vor dem Hin­ter­grund des gesell­schaft­li­chen Wandels durch Globa­li­sie­rung und demogra­fi­sche Entwick­lung entstehen zunehmend neue Wohn­for­men, in denen Menschen aller Genera­tio­nen aktiv ihr Zu­sam­men­le­ben gestalten.

Voruntersuchung Räumliches Leitbild

Zehn Fragen an Karlsruhe, die die verschie­de­nen räumlichen Zukunfts­op­tio­nen der Stadt veran­schau­lich­en. Die Fragen gingen aus einer Voruntersuchung zum Räumlichen Leitbildes 2015 hervor.

Stoßrichtungen des Leitbildes

Die sieben Stoßrichtungen bringen die wichtigs­ten Themen für die Zukunft Karls­ru­hes auf den Punkt und heben die Stärken der Stadt in Form klarer ­Ziel­set­zun­gen hervor.

Vorhaben

Bei der Konkretisierung der Stoßrichtungen des räumlichen Leitbilds haben sich 16 Vorhaben herauskristallisiert. Sie beschreiben Qualitätskriterien sowie Strategien für zukünftige Projekte.

Städtebaulicher Rahmenplan Klimaanpassung

Die Stadt Karlsruhe gehört aufgrund ihrer exponier­ten Lage im Ober­rhein­gra­ben zu den Kommunen mit den höchs­ten ­Durch­schnitt­stem­pe­ra­tu­ren in Deutsch­land. Ziel ist die Entwicklung konkreter Handlungsoptionen für Hot-Spots.

Planungswerkstatt

Drei inter­dis­zi­pli­näre Planer­teams erarbei­te­ten von Januar bis Juni 2014 im Rahmen der Planungs­werk­statt Empfeh­lun­gen für ein „Räum­li­ches Leitbild Karlsruhe 2015“.

Die Stadt neu denken

Die große Ausstel­lung „Die Stadt neu denken“ zum 300-jährigem Stadt­ju­bi­läum Karlsruhes präsentierte 2015 den Gesamt­pro­zess und den Entwurf zum Räumlichen Leitbild. In den Filmen zur Ausstellung können sich Interessierte umfassend informieren.

2016: Die Stadt neu entwickeln

Seit Dezember 2016 ist der Rahmenplan „Räum­li­ches Leitbild“ beschlos­sen und die Stadt arbeitet intensiv damit weiter. Ziel ist, räumliche Entwick­lungs­op­tio­nen aufzu­zei­gen und Entschei­dungs­pro­zesse zur Zukunft Karlsruhes zu unter­stüt­zen.

Soziale Quartiersentwicklung

Die Stadt Karlsruhe setzt seit 2018 das Konzept der Sozialen Quartiersentwicklung um. Übergreifendes Ziel ist die Entwicklung inklusiver und generationengerechter Quartiere, in denen verschiedene Bedarfe und strukturelle und soziodemografische Unterschiede berücksichtigt werden.

Städtebauliche Rahmenpläne

Die städtebaulichen Rahmenpläne ist ein informelles Planungsinstrument Karlsruhes. Zielsetzung ist die Untersuchung des Weiterentwicklungspotenzials von Gebieten innerhalb des Stadtgebiets.

Biotop- und Ausgleichsflächenpflege

Ziel der Biotoppflege ist es, Lebensstätten von Tieren und Pflanzen mit einheitlichen Standorteigenschaften zu erhalten. Lesen Sie mehr, wie die Stadt Karlsruhe durch unterschiedliche Pflegemaßnahmen zum Naturschutz beiträgt.

Gestaltungsbeirat

Der Gestaltungsbeirat der Stadt Karlsruhe überprüft die ihm vorgelegten Bauvorhaben im Hinblick auf ihre städtebauliche, architektonische und gestalterische Qualität und beurteilt ihre Auswirkung auf das Stadt- und Landschaftsbild.

Grünordnung und Klimaanpassung im Bebauungsplan

Der Bebauungsplan „Grünordnung und Klimaanpassung“ bildet einen Baustein in der Klimaanpassungsstrategie der Stadt Karlsruhe. Er regelt Maßnahmen zur Begrünung und Entsiegelung auf privaten Grundstücken. Ziel ist es die Hitzebelastung in der Stadt zu reduzieren.

Planung Neugestaltung Kaiserstraße

Mit der Umsetzung der Kombilösung und der damit verbundenen Herausnahme der Schienen aus der Kaiserstraße und der Karl-Friedrich-Straße bietet sich die Chance, die zentrale Fußgängerzone neu erlebbar zu machen.

Klimawandelanpassung

Die Anpassungsstrategie gibt einen Überblick über Maßnahmen wie Karlsruhe mit den Folgen des Klimawandel, beispielsweise Hitze und Starkregen, umgeht.

Weiterentwicklung Passagehof

Ab dem 1. September 2023 wird der Passagehof zur Fußgängerzone. Weitere Informationen zur Weiterentwicklung auf Basis des Reallabors finden Sie hier.

Neugestaltung Innenstadt

Hier finden Sie die Projekte zur Neugestaltung der Innenstadt.

Gesamtstädtische Planungskonzepte

Zu bestimmten Themen gibt es Konzepte, die das gesamte Stadtgebiet umfassen.

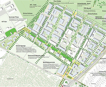
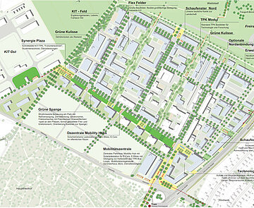
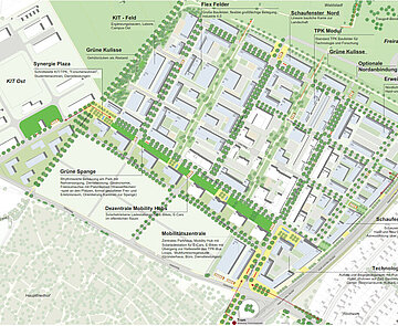
Neue Baugebiete

In Karlsruhe entstehen an verschiedenen Stellen neue Baugebiete unterschiedlicher Größe. Informationen zu Baugebieten, deren Entwicklung bereits läuft oder bald startet.

Entsiegelungskonzept Innenstadt

Die Stadt Karlsruhe möchte durch Entsiegelung der Innenstadt das Stadtklima und die Aufenthaltsqualität zu verbessern. Ziel ist es, versiegelte Flächen zu entfernen und durch Begrünung zu ersetzen.

-

Kopieren Kopieren Schreiben Schreiben