Menü
eService
Direkt zu
Suche

Nachhaltig, modern und funktional

Neuer Kinder- und Jugendtreff für die Südstadt

© Reich + Seiler Freie Archi­tek­ten BDA

Der Kinder- und Jugendtreff in der Südstadt ist seit seiner Errichtung in den 1980er Jahren ein wichtiger Dreh- und Angelpunkt für die Jugend im beliebten Karlsruher Viertel. Und doch ist das Gebäude mittlerweile nicht nur in die Jahre gekommen, sondern weist tatsächlich diverse Mängel und Schäden auf. Ein moderner, funktionaler und sich in die Umgebung bestens einfügender Neubau wird die Lösung sein.

"Ein unprätentiöser, zeitloser Entwurf, der sich selbstverständlich in die umgebende Bebauung einfügt."

Juryurteil im Juli 2020

Einstimmig entschieden

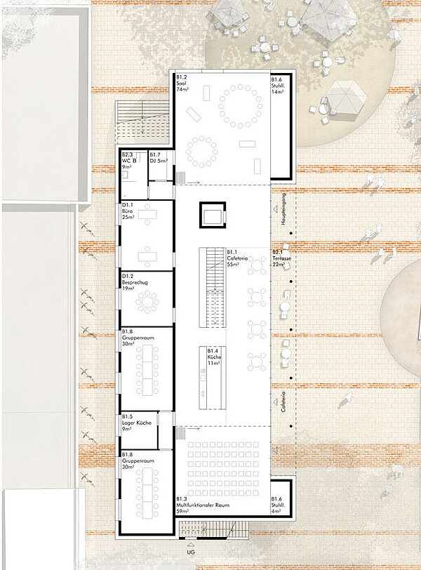
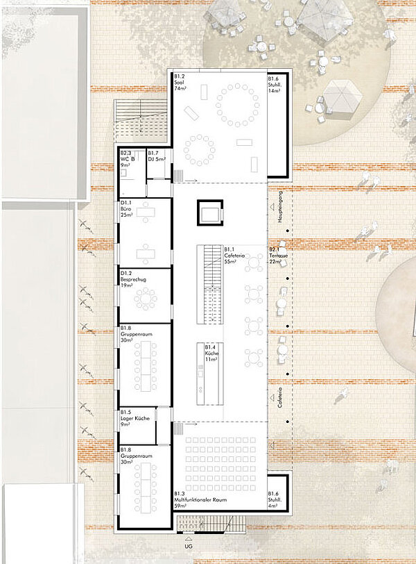
Im Rahmen der Projektausschreibung hatte sich die Jury im Juli 2020 einstimmig für den Neubauentwurf des Architektenbüros Reich + Seiler Freie Architekten und des Landschaftsbauers stadt landschaft plus entschieden. Schlank, modern und völlig unprätentiös kommt der Vorschlag der Architekten daher. Das zweigeschossige Gebäude mit integrierter Photovoltaikanlage und klaren Strukturen fügt sich wie ein passendes Puzzlestück in die Umgebung entlang des Verbindungsweges von der Augartenstraße ein.

Nachhaltigkeit und Funktionalität im Vordergrund

Der Architektenentwurf sieht im ersten Entwurf bereits zahlreiche spannende Nachhaltigkeitsansätze vor. Ein zentrales Kriterium für die Stadt, die gerade bei Neubauten hohe Ansprüche an klimagerechte Konzepte hat. Kompakt und mit intelligenter Materialwahl überzeugen die Planungen diesbezüglich, konsequent wurde zudem das Thema Solarstrom mit der intelligenten Integration in die schräg aufgestellten Dachzellen umgesetzt.

An einigen Stellen ist aber auch noch Luft nach oben. So muss der Entwurf mit Blick auf Funktionalität noch weiter angepasst werden. Ein größeres Stuhllager, die Möglichkeit, Multifunktionsraum und Saal im Erdgeschoss miteinander zu koppeln, eine sinnvollere Raumaufteilung und die Verlegung des geplanten Schlagzeug-Probenraums stehen noch auf der Agenda.

Der offene, zeitlose und mutige Vorschlag der Architekten lässt aber Raum für all diese Anpassungen. Und so wird der neue Kinder- und Jugendtreff am Ende nicht nur seinen Zweck erfüllen, sondern auch zu einem nachhaltigen Vorzeigeprojekt in der Südstadt werden.

Wettbewerbsform Mehrfachbeauftragung
Anzahl teilnehmende Büros 6
Preisgericht Vorsitz: Prof. Armin Günster, Architekt, Hochschule Karlsruhe, Fakultät für Architektur und Bauwesen
Daniel Fluhrer, Bürgermeister Stadt Karlsruhe
Elisabeth Peitzmeier, Geschäftsführerin Stadtjugendausschuss e.V. Karlsruhe
Prof. Barbara Engel, Architektin, KIT, Fakultät für Architektur, Städtebau
Prof. Anne Sick, Amtsleitung Amt für Hochbau und Gebäudewirtschaft, Stadt Karlsruhe
Jurysitzung 17.07.2020
1. Rang Reich+Seiler Freie Architekten, Karlsruhe
StadtLandschaftPlus Landschaftsarchitekten, Karlsruhe
2. Rang harder stumpfl schramm Freie Architekten, Stuttgart
Eurich . Gula Landschaftsarchitektur, Wendlingen am Neckar
Transsolar Energietechnik, Stuttgart

Wettbewerbs-
broschüre

Wettbewerbsbroschüre 61 MB (PDF)
07. Oktober 2024, Stadt Karlsruhe

-

Kopieren Kopieren Schreiben Schreiben